top of page
Modular Homes


Internal Dynamic Furniture
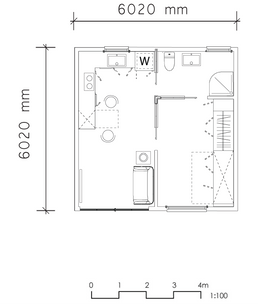
I was tasked with this project while at Elevli Plus. I was instructed to design a tiny modular home that can be prefabricated with inbuilt furniture's and appliances.
Kitchen Appliances:

Shelving & Murphy Bed - Folded out
Prebaricated shelving with an inbuilt murphy bed. Maximises storage and floor space as the bed can be folded in when not in use.

Shelving & Murphy Bed - Folded in
The below diagram shows the shelving units once the murphy bed has been folded in.

Kitchen & Murphy table:
Prefabricated shelving and kitchen benches in the modular home. The home will come with inbuilt appliances, seen in the diagram on the left. There is a murphy table added to allow for dining and other activities.

bottom of page









